松永ビル
Shoei Building
小商いの拠点
松本市城東のビンテージビルが、菓子製造業の許可申請ができる兼用住居・事務所・飲食店の開業が可能な小商いの複合施設として生まれ変わります。
リノベーション済居室はすべて商談中または成約済となりました。ありがとうございます。
1階飲食店で入居者募集中です。


松永ビルについて
松本市内のレトロなビルで、以前はスナックやパブが入り活気あふれる場でしたが、長い間1階の1店を除いて賃貸募集がされずに空室だらけの状態が続いていました。
もともとの設計は、松本市立博物館など県内の商業建築で知られる設計事務所の手によるもので、時を重ねて店舗が入れ替わるごと、少しずつ改修されて変化してきたビルです。
今回リノベーションを担当するのは地域に根ざして信頼されてきた地元工務店。当時のこだわりが感じられる意匠や隠れ家的な佇まいなど、この建物が持つ魅力は残しながら、新たな再生に取り組んでいます。
Plan
松本市内の賃貸では珍しい、パンやお菓子などの菓子製造業許可申請ができる厨房を備えた兼用住居や、物販・事務所スペースに適したスモールビジネスがスタートできる居室をご用意しました。「今はオンライン販売が中心だけど、実店舗も持ちたい」「副業で週末だけ憧れのお店をオープンしたい」「移住とあわせて開業したい」など、理想の働き方は十人十色。職・住一体型の兼用住宅なら、それぞれのスタイルに合わせた自由な生き方の可能性が広がります。各室ともに、内装は借りる方がそれぞれの感性で彩りを加えて心地よく過ごせるよう、シンプルですっきりとした空間になっています。※間取りなどの記載内容は若干の変更になる場合があります。

3A 成約済
3階の1フロア全体を贅沢に使用した菓子製造業許可の申請ができるキッチン室と販売スペースを備えた店舗付き兼用住居です。住居部分はご夫婦などの2人入居でもゆったり暮らせる70㎡以上。寝室としても活用できる広々WIC付きです。
SOHO・賃貸中は法人登記可・ペット不可・火災保険/保証会社加入要
設備
トイレ/風呂別、ウォシュレット付きトイレ、モニター付きインターホン、室内洗濯機置き場、室内洗濯干し場、ウォークインクローゼット、エアコン2台(住居 ・厨房)、24時間ゴミ出し可、菓子製造業申請可能 厨房付き

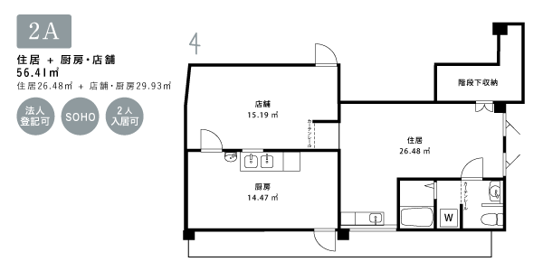
2A 成約済
3Aより住居空間がコンパクトな菓子製造業許可の申請ができるキッチン室と販売スペースを備えた店舗付き兼用住居です。1人または2人入居でミニマルでシンプルな生活が送れます。
SOHO・賃貸中は法人登記可・ペット不可・火災保険/保証会社加入要
設備
トイレ/風呂別、ウォシュレット付きトイレ、モニター付きインターホン、室内洗濯機置き場、エアコン2台(住居 ・厨房)、24時間ゴミ出し可、菓子製造業申請可能 厨房付き

2B 成約済
入口側に販売店舗や事務所の商談スペースとして活用できる土間付きのオフィス・店舗用の区画です。フリーランスや開業を考えている士業、SE、デザイナーなどの事務所としてやクリエイターのアトリエ、販売店舗に。
賃貸中は法人登記可・事務所/販売店/アトリエ利用可・ペット不可・火災保険/保証会社加入要
設備
簡易キッチン、ウォシュレット付きトイレ、モニター付きインターホン、エアコン1台、24時間ゴミ出し可

1B 家賃 110,000
水道代・管理費 10,000円 / 敷金1か月・礼金1か月
1階奥側に位置する隠れ家的な飲食店区画。現在はリフォームが入っておらず以前の店舗造作が一部残っている状態です。設備交換や修繕が必要です。
賃貸条件応相談・賃貸中は法人登記可・飲食店向き・ペット不可・火災保険/保証会社加入要
Location
松本城の東側に位置する、かつては居酒屋やスナックがひしめきあっていた城東(じょうとう)地区。今では落ち着きのある独特のレトロな風情を持ったエリアです。観光地として人気を誇る松本城や中町通りなどの商業地区のにぎわいににも近く、市役所や大型スーパーも徒歩圏にある住まいとしても生活のしやすいバランスが取れた立地です。
松本駅
徒歩22分
松本城
徒歩8分
四柱神社
徒歩10分
市役所
徒歩8分
イオンモール松本
徒歩7分
コンビニ
徒歩5分
あがたの森公園
徒歩17分
信州まつもと空港
車30分
- 住所
-
〒390-0807 長野県松本市城東1-3-19
- アクセス
-
JR松本駅徒歩22分、塩屋小路入口・葭町バス停徒歩2分
- 築年数・構造
-
1982年築(築43年)・鉄骨造3階建
- 総戸数
-
5戸
- 電気・ガス
-
中部電力・都市ガス
- 駐車場
-
近隣80m 1台7,200円 ※契約別途
- 契約
-
普通借家契約(2または3年)
本物件は内覧を受付中です。
